- 79100 Freiburg
- Kaufpreis1.450.000,00 €
- Wohnfläche224,0 m²
- Grundstück 319,0 m²
- Anzahl Zimmer 7,0
- Objektnummer 2809
Objektbeschreibung
Objekttitel
Reihenmittelhaus mit Privatgarten, Stellplätzen und Einliegerwohnung in der Wiehre
Lage
Dieses attraktive Haus liegt in einer der besten Wohngegenden Freiburgs, konkret im begehrten Holbeinviertel im Stadtteil Wiehre. Das Holbeinviertel wird regelmäßig als eines der elegantesten und wertstabilsten Wohnquartiere Freiburgs bezeichnet – geprägt von stilvollen Altbauensembles, ruhigen Straßen und dennoch zentraler Anbindung.
Die Wiehre selbst zählt zu den traditionsreichsten und begehrtesten Stadtteilen Freiburgs. Sie liegt südlich der Altstadt, eingebettet zwischen der Dreisam und dem Sternwald, mit fußläufiger Nähe zum Stadtzentrum. Die Infrastruktur ist ausgezeichnet: Geschäfte des täglichen Bedarfs, Cafés, Restaurants, Wochenmärkte sowie vielfältige Angebote zur Nahversorgung sind gut erreichbar. Für Erholung und Naturgenuss bieten sich der Lorettoberg und der Sternwald in direkter Nähe an.
Auch verkehrstechnisch ist die Lage hervorragend: Öffentliche Verkehrsmittel (Straßenbahn, Bus) sind in nächster Nähe verfügbar, und mit dem Fahrrad oder der Straßenbahn am erreichen Sie die Innenstadt in wenigen Minuten.
Schulen, Kindergärten und medizinische Versorgungseinrichtungen befinden sich im Umfeld und machen die Lage auch für Familien sehr attraktiv.
Diese Lage verbindet urbanes Wohnen mit hoher Lebensqualität – ein Idealstandort für Menschen, die Ruhe und zentrale Erreichbarkeit vereinen möchten.
Ausstatt_beschr
Gebäude & Technik
Baujahr: 1981, Modernisiert 2017
Zustand: gepflegt, regelmäßig instand gehalten
Energiekennwert: ca. 80,95 kWh/(m²·a) (Energieeffizienzklasse C) gültig bis 16.02.2035
Heizung: Gaszentralheizung
Aufteilung & Räume
Gesamt: ca. 224 m² Wohnfläche (Nähere Erläuterung zur Wohnfläche siehe unter Sonstige)
Hauptgebäude über drei Ebenen: Erdgeschoss, Obergeschoss, Dachgeschoss
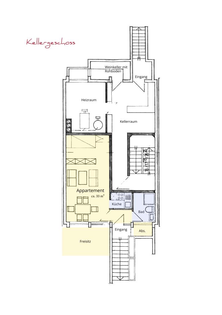
Separater Wohneinheit im Souterrain mit eigener Terrasse, Küche und Bad
7,5 Zimmer insgesamt (inkl. Einliegerwohnung)
Zwei Bäder (im Hauptgebäude sowie separat in der Einliegerwohnung)
Sichtbalken, offene Galeriebereiche, Balkone und Terrassen sorgen für wohnliche Atmosphäre
Außenbereiche & Stellplätze
Terrasse mit Blick ins Grüne, Eigengartenflächen
Garage + Carport-Stellplätze + weitere Außenstellplätze
Laufende Kosten 2025
Grundsteuer: ca. 990 EUR/Jahr
Strom: ca. 100 EUR/Monat
Gas (inkl. Einliegerwohnung): ca. 160 EUR/Monat
Holz für Kachelofen: ca. 500 EUR/Jahr
Gebäudeversicherung: ca. 610 EUR/Jahr
Objektbeschreibung
Willkommen in diesem charmanten Reihenmittelhaus in absolut bevorzugter Lage mit hochwertiger Substanz und flexiblen Nutzungsmöglichkeiten! Auf rund 186 m² Wohnfläche erstreckt sich das Haus über drei Ebenen und bietet zusätzlich eine eigenständige Einliegerwohnung. Wesentlich mehr Fläche ist zur Wohnnutzung u.a. im Dachgeschoss ausgebaut und beträgt insgesamt 224 m².
Die Raumaufteilung überzeugt mit klarer Logik.
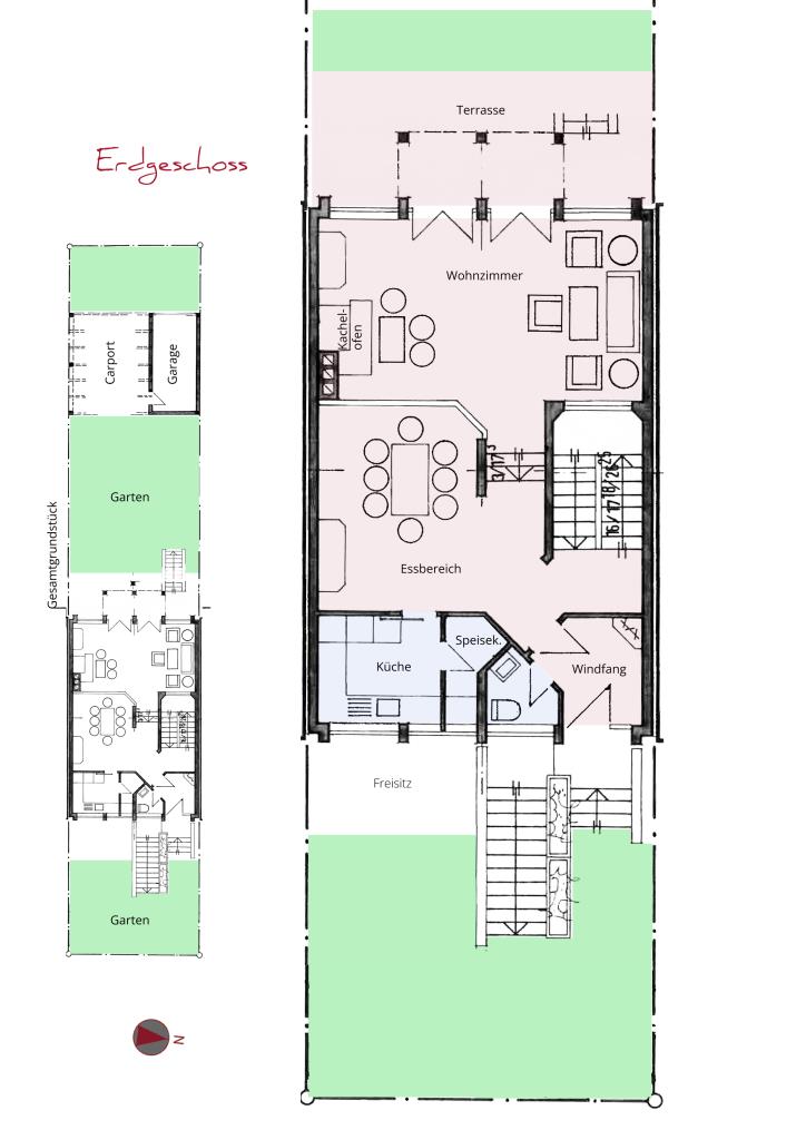
Im Erdgeschoss erwarten Sie ein gemütlicher, heller Wohnbereich mit funktionalem Kachelofen, ein direkter Zugang zur Terrasse mit Blick ins Grüne, eine Küche mit EBK und ein Gäste-WC.
Im Obergeschoss befinden sich zwei großzügige Schlafzimmer mit jeweils einem Zugang zum Balkon, ein komfortables Tageslichtbad mit Wanne und Dusche, einem separatem WC mit direktem Zugang ins Bad sowie viel Platz für vielfältige Nutzungsmöglichkeiten wie beispielsweise ein Büro.
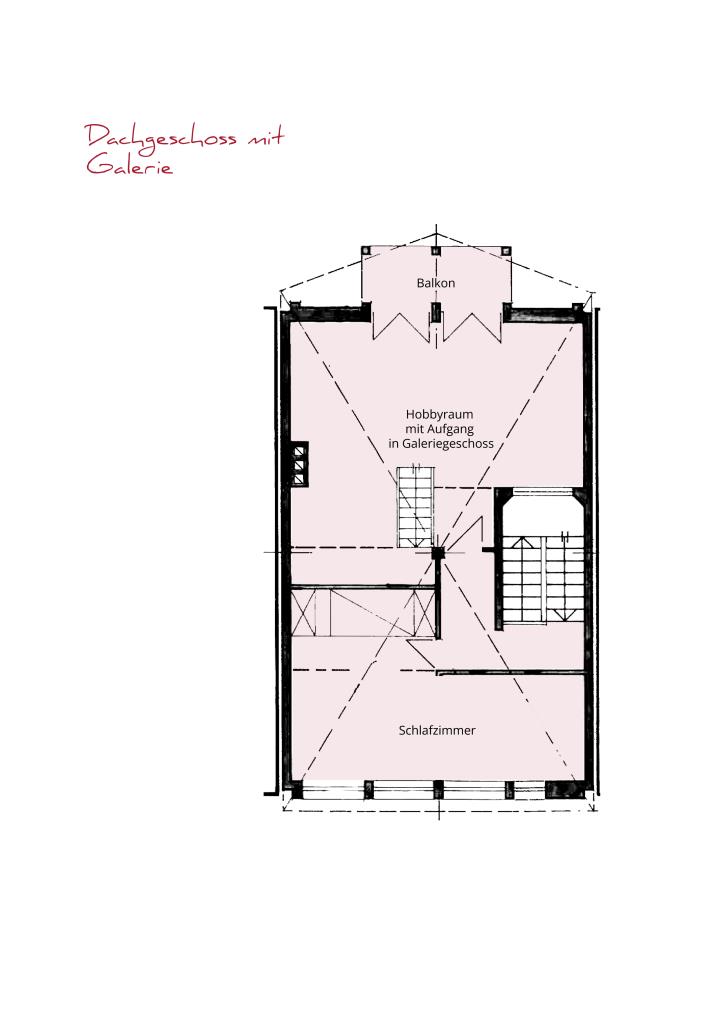
Im Dachgeschoss lassen sichtbare Holzbalken, eine offene Galerie, zwei weitere Zimmer und ein zusätzlicher Balkon den Raum besonders attraktiv erscheinen.
Die im Souterrain gelegene Einliegerwohnung bietet ein eigenes Bad, eine Küche und einen privaten Außenbereich – optimal für die Nutzung als Mietwohnung oder für Familien mit multigenerationalem Wohnen.
Eine Garage, ein Carport-Stellplatz und weitere Stellmöglichkeiten vervollständigen dieses vielseitige Angebot.
Der gepflegte Zustand des Hauses, moderne Standards, eine klare Struktur sowie die auf Wunsch mögliche Übergabe ohne Inventar (bis auf die Küche) sprechen für eine rasche und flexible Nutzung. Die Immobilie ist spätestens zum 31. Dezember 2025 verfügbar.
Sonstige_angaben
Die im Exposé angegebene "Wohnfläche" gibt die aktuell als Wohnraum ausgebaute und genutzte Fläche wieder.
In den Plänen des Architekten wurden Räume zum Beispiel als Hobbyraum, Speicher oder Abstellkammer bezeichnet, die heute der Wohnnutzung zuzuordnen sind.
Die vom Architekten angegebenen Wohnfläche, entsprechend seiner Planung, weist eine Wohnfläche von 185,83 m² aus und eine Nutzfläche von 80 m². Diese Nutzflächen beinhalten auch die heute zu Wohnzwecken verwendeten Räumen. Die Begründung des Architekten lässt sich aus der GFZ herleiten.
Ausstattung
- Bad
- Dusche, Wanne, Fenster
- Küche
- Einbauküche
- Bodenart
- Parkett
- Heizungsart
- Zentral
- Befeuerung
- Gas, Dezentrales Warmwasser
- Stellplatzart
- Freiplatz,
- Gartennutzung
- Ausrichtung Balkon/ Terrasse
- West
- Rolladen
- Dachform
- Satteldach
- Dachboden
- Gäste-WC
Energiepass
- Energieausweistyp
- Bedarfsausweis
- Gültig bis
- 16.02.2035
- Energiebedarf
- 80,95
Kontaktperson
- Firma
- Sauer Wohnbau GmbH & Immobilien GmbH
- Name
- Vertrieb Sauer Immobilien GmbH
- Strasse
- Silberbachstraße
- Hausnummer
- 19
- PLZ
- 79100
- Ort
- Freiburg
- besser@immobilien-sauer.de
- Tel.
- +49 761 7033222
Immobiliendetails
- Objekt / Online - Nr.
- 2809
- Vermarktung
- KAUF
- Objektart
- EINFAMILIENHAUS und HAUS
Kosten
- Kaufpreis
- 1.450.000,00 €
- Provision
- 3,57 % inkl. MwSt. inkl. MwSt.
- Courtagehinweis
- Es entsteht für den Käufer eine Provision von 3,57 % (inkl. MwSt.) entsprechend §656 ff. BGB. ( Provisionsteilung zwischen Verkäufer und Käufer zu je 50%). Alle Angaben sind ohne Gewähr und basieren auf den Informationen des Auftraggebers. inkl. MwSt.
Flächen
- Wohnfläche
- 224,0 m²
- Grundstücksfläche
- 319,0 m²
- Anzahl Zimmer
- 7,0
- Anzahl Schlafzimmer
- 5,0
- Anzahl Badezimmer
- 2,0
- Gäste-WC
- 1,0
- Anzahl Stellplätze
- 3,0
- Anzahl Balkone
- 2,0
- Anzahl Terrassen
- 1,0
- Anzahl Wohn / Schlafzimmer
- 7,0
- Anzahl der Wohneinheiten
- 2,0
- Teilbar ab
- 224,0 m²
Zustand
- Baujahr
- 1981
- Frei ab
- Vorausstl. Jan. 2026










