- 79100 Freiburg
- Christoph Mang Straße 7
- Kaufpreis339.000,00 €
- Hausgeld95,00 €
- Wohnfläche45,0 m²
- Anzahl Zimmer 2,0
- Objektnummer 2814
Freiburg - Handwerker aufgepasst! 2-Zi. Whg im DG mit großer Ausbaureserve, FR Wiehre - Provisionsfrei
Objektbeschreibung
Objekttitel
Handwerker aufgepasst! 2-Zi. Whg im DG mit großer Ausbaureserve, FR Wiehre - Provisionsfrei
Lage
Die Freiburger Unterwiehre ist in ihrer Hauptsache durch die schönen Baustile der 1900 und 1930er geprägt. Also zu Zeiten, in der eine gewisse Großzügigkeit in punkto Abstandsflächen und dazwischen liegende Grünanlagen in den guten Lagen großgeschrieben wurde.
Durch die Umsetzung des Konzeptes der großzügigen Wohnraumschaffung ist diese Lage bis heute, gerade für die junge Familie mit Kind, ein gern gesuchtes und beliebtes Wohnviertel, heute fast ausschließlich von Eigentümern selbst bewohnt.
Gut angebunden an die Innenstadt durch die Straßenbahnhaltestelle in unmittelbarer Nähe und Einkaufsmöglichkeiten in der näheren Umgebung.
Ausstatt_beschr
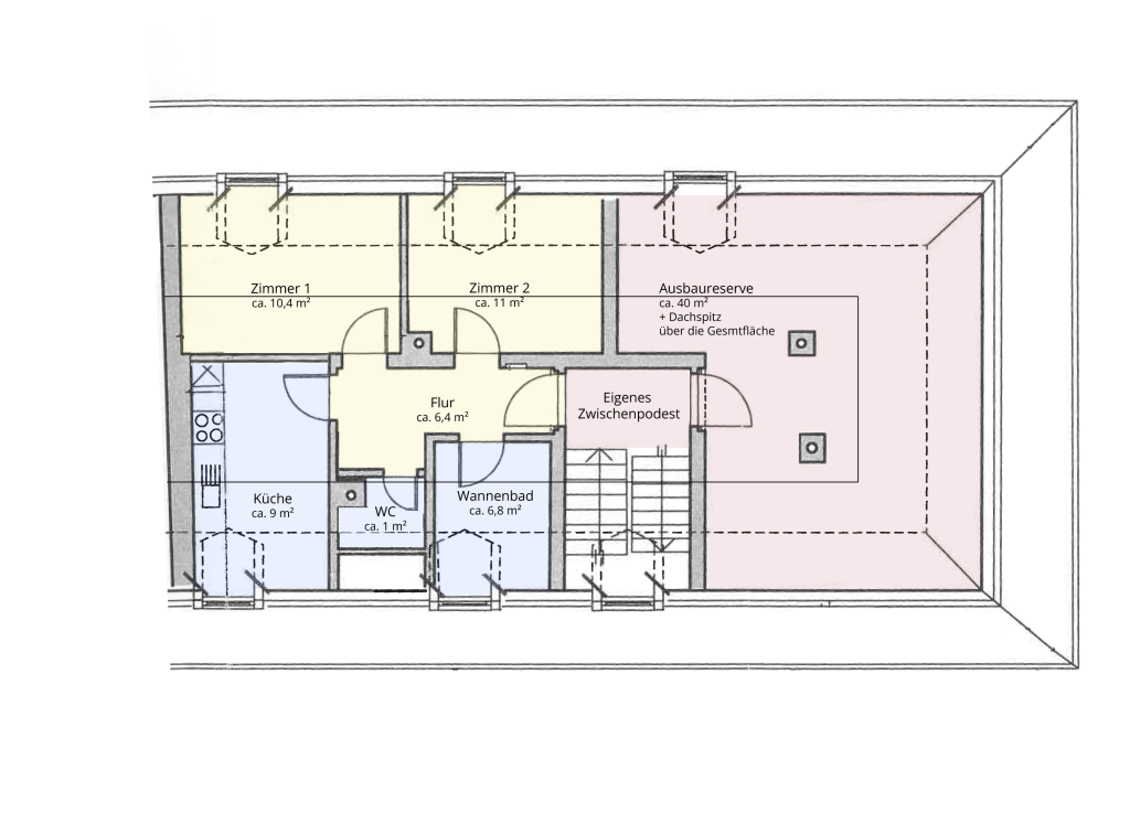
Besonderheit – Ausbaureserve
Die Ausbaureserve (siehe Grundriss, rosafarbener Bereich) bietet eine außergewöhnliche Erweiterungsmöglichkeit:
Der Dachbereich kann direkt an die bestehende Wohnung angeschlossen und individuell gestaltet werden. Ob Atelier, zusätzliche Schlafräume oder großzügiger Wohnbereich – die Gestaltungsmöglichkeiten sind vielfältig.
Der darüberliegende Dachspitz kann ebenfalls ausgebaut und integriert werden. Somit lässt sich hier ein modernes, offenes Wohnkonzept realisieren – ideal für alle, die mit handwerklichem Geschick und Ideenreichtum eine besondere Immobilie schaffen möchten.
• 2 Zimmerwohnung im Dachgeschoss mit ca. 45 m²
• Ausbaureserve mit ca. 40 m² auf gleicher Etage
• Dachspitz über der gesamten Fläche inklusive
• Echtholz-Dielenböden in Wohnräumen und Flur
• Tageslichtbad mit Wanne
• Separates WC
• Küche mit Dachgaube
• Kunststofffenster mit Isolierverglasung
• Gasetagenheizung
• Kellerabteil vorhanden
Objektbeschreibung
Eine seltene Gelegenheit en wir Ihnen mit dieser 2-Zimmer-Dachgeschosswohnung mit rund 45 m² Wohnfläche sowie eine direkt angrenzende Ausbaureserve von ca. 40 m² auf derselben Etage.
Der darüberliegende Dachspitzbereich gehört ebenfalls zur Einheit und kann zusätzlich ausgebaut werden.
Damit eröffnet sich eine Gesamtwohnfläche von über 90 m², ideal für Handwerker, Baukundige oder alle, die Freude an kreativen Ausbauprojekten haben.
Die Wohnung verfügt derzeit über ein Schlafzimmer, ein weiteres Zimmer, eine Küche, ein Wannenbad, ein separates WC sowie einen kleinen Flur. Der angrenzende unausgebaute Dachbereich bietet hervorragendes Potenzial für die Realisierung einer großzügigen Maisonette-Wohnung oder eines offenen Atelierbereichs.
HINWEIS: Vollmachten zum Komplettumbau liegen laut Teilungserklärung vor!
Sonstige_angaben
Besichtigungstermine nach Vereinbarung möglich!
Ausstattung
- WG-Geeignet
- Bad
- Wanne, Fenster
- Küche
- Offen, Pantry
- Bodenart
- Parkett, Dielen
- Heizungsart
- Etage
- Befeuerung
- Gas
- Unterkellert
- Keller
- Abstellraum
- Fahrradraum
- Rolladen
- Dachform
- Satteldach
- Dachboden
Energiepass
- Energieausweistyp
- Bedarfsausweis
- Gültig bis
- 12.11.2028
- Energiebedarf
- 261,70
Kontaktperson
- Firma
- Sauer Wohnbau GmbH & Immobilien GmbH
- Name
- Vertrieb Sauer Wohnbau GmbH
- Strasse
- Silberbachstraße
- Hausnummer
- 19
- PLZ
- 79100
- Ort
- Freiburg
- besser@immobilien-sauer.de
- Tel.
- +49 761 7033222
Kosten
- Kaufpreis
- 339.000,00 €
- Hausgeld
- 95,00 €
Flächen
- Wohnfläche
- 45,0 m²
- Anzahl Zimmer
- 2,0
- Anzahl Schlafzimmer
- 2,0
- Anzahl Badezimmer
- 1,0
- Anzahl Balkone
- 1,0
- Anzahl Wohn / Schlafzimmer
- 3,0
- Anzahl der Wohneinheiten
- 7,0
- Teilbar ab
- 45,0 m²
Zustand
- Baujahr
- 1920
- Frei ab
- sofort









